Проект одноэтажного дома-бани 9,55х6,29 м

0/5 ·
Создан: 5 декабря 2024 г. Обновлён: 26 марта 2026 г.

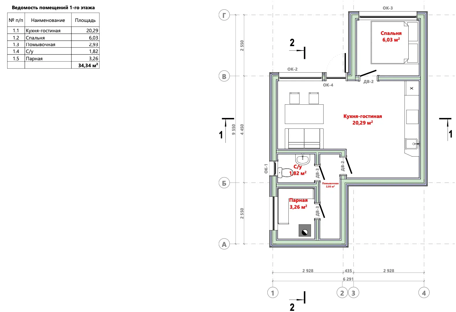
Готовый архитектурно-конструктивный проект каркасного дома-бани площадью 34 м² для самостоятельного строительства. В основе проекта лежит оптимизированная планировка, включающая парную, помывочную, кухню-гостиную, санузел и спальню.

Комплект документации позволяет рассчитать бюджет на закупку материалов — при реализации проекта под ключ стоимость строительства начинается от 25 000 руб./м². В состав входят конструктивный раздел (КР) с узлами и схемами сборки каркаса, эскизный проект (ЭП) и детальный файл распиловки пиломатериалов. Проект учитывает все ключевые параметры теплоизоляции: утепление пола, стен и кровли составляет 200 мм.

Другие материалы автора

0 · 0 отзывов

Отзывов пока нет. Будьте первым!

Ещё интересные курсы

П
Можно купить
464 ₽ 22 500 ₽ −98%

Профессия 3D-художник окружения. Моделирование городского и природного окружения

Render.ru
Эндометриоз, миома, гиперплазия Можно купить
94 ₽ 3 600 ₽ −97%
5.0

Эндометриоз, миома, гиперплазия

Ирина Жгарёва
Закрытие года в бухгалтерии. Чек-лист важных и обязательных дел Можно купить
80 ₽ 590 ₽ −86%

Закрытие года в бухгалтерии. Чек-лист важных и обязательных дел

Розалия Мясаутова
Н
Можно купить
146 ₽ 2 500 ₽ −94%

Нейро-коррекция в домашних условиях

Юлия Лыкова
Гаага. Столица на Схевенингенском побережье Можно купить
360 ₽ 400 ₽ −10%

Гаага. Столица на Схевенингенском побережье

Людмила Фролова