Проект бани из бревна

0/5 ·
Создан: 24 апреля 2025 г. Обновлён: 26 марта 2026 г.

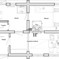
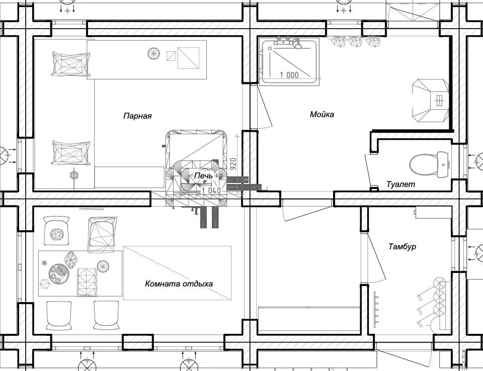
Воплотите в жизнь концепцию «Живой бани», сочетающей принципы традиционного русского зодчества и современные инженерные решения для долговечности конструкции. В основе проекта лежит создание комфортной среды с эффективным паровым эффектом и грамотной вентиляцией. Вы получите детальные рекомендации по устройству плавающих деревянных полов, организации системы отвода воды, возведению стен из бревна и монтажу стропильной системы. Особое внимание уделено интеграции специализированных банных печей («Жива», «Лежебока», «Неваляшка») и теплоизоляции цокольной части, что гарантирует защиту здания от перепадов влажности и температур.

Другие материалы автора

Образное парение в русской бане. Коллекция основных движений банщика Можно купить
100 ₽ 3 150 ₽ −97%

Образное парение в русской бане. Коллекция основных движений банщика

Иван Бояринцев
О
Можно купить
132 ₽ 3 630 ₽ −96%
5.0

Основы строительства Живой Бани

Иван Бояринцев
О
Можно купить
126 ₽ 3 500 ₽ −96%
4.0

Основы строительства Живой Бани

Иван Бояринцев
0 · 0 отзывов

Отзывов пока нет. Будьте первым!

Ещё интересные курсы

Строительство дома и благоустройство участка Можно купить
138 ₽ 598 ₽ −77%
5.0

Строительство дома и благоустройство участка

Прибор для поиска родниковых жил "ПУЛЬС" Можно купить
80 ₽ 1 000 ₽ −92%

Прибор для поиска родниковых жил "ПУЛЬС"

А
Можно купить
80 ₽ 490 ₽ −84%

Альпийский сад, рокарии и ландшафтное оформление участка

В
Можно купить
122 ₽ 990 ₽ −88%

Все для дома и сада. Готовимся к сезону

New Directions
Проект каркасного дома 7,5х10,5 78 (88) м2 для строительства своими руками Можно купить
4 813 ₽ 11 900 ₽ −60%

Проект каркасного дома 7,5х10,5 78 (88) м2 для строительства своими руками

karkasdom.info
Перекраска и работа с жалюзийными дверями Можно купить
566 ₽ 1 100 ₽ −49%

Перекраска и работа с жалюзийными дверями

Валери Фирс
Декоративный бетон. Нарезка кладки Тёсаный камень Предзаказ
1 237 ₽ 8 000 ₽ −85%

Декоративный бетон. Нарезка кладки Тёсаный камень

Эффект & Профи